Mengenermittlung
Die Mengenermittlung (bausprachlich Massenermittlung) ist äußerst wichtig und begleitet den ganzen Bauablauf.
An der Schnittstelle zwischen Planung und Ausführung angesiedelt, hat sie großen Einfluss auf den gesamten weiteren Bauablauf, sie ist in allen Phasen das “ungeliebte Kind “. Mit herkömmlichen Methoden macht Mengenermittlung wenig Freude – viel Aufwand für oftmals unzureichende Ergebnisse. Das ist kein Wunder, denn die bisherigen Verfahren sind nicht mehr zeitgemäß (REB 1962) oder die Ermittlung aus der CAD zu komplex, schwierig und kaum nachvollziehbar.
Mengen- und Kostenüberschreitungen sind am Bau leider eher die Regel als die Ausnahme. Durch die Nutzung der Hasenbein-Methode reduzieren Sie dieses Risiko erheblich. Die Methode ist einzigartig und liefert Ihnen den entscheidenden Wettbewerbsvorteil!
Je genauer die Mengenermittlung, desto sicherer die Ausschreibung und genauer die Kosten. Dies ist in der Theorie so einfach wie schwierig in der Praxis.
Die „Hasenbein-Methode“ basiert auf einer ganz einfachen Grundidee:
“Was ich einmal mache, tue ich kein zweites Mal!”
Beherzigen Sie das mit diesem Leitsatz verbundene System, dann sparen Sie Zeit und Geld, erhöhen die eigene Motivation und die Ihrer Mitarbeiter, schaffen die erforderliche Transparenz, um an mehreren Bauteilen, bzw. auch an mehreren Projekten, gleichzeitig arbeiten zu können. Und Sie schaffen die notwendigen Voraussetzungen, um später die Abrechnung quasi als „Abfallprodukt“ Ihrer Mengenermittlung in kürzester Zeit erledigen zu können.
Wichtige Grundregeln des Systems:
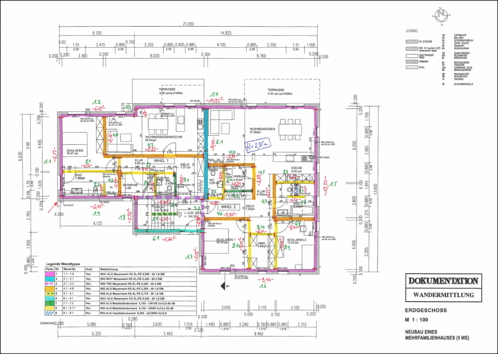
Alle Mengen werden optisch greifbar manuell im Plan dokumentiert.
Das heißt, die unterschiedlichen Materialien bzw. Abmessungen werden andersfarbig dargestellt.
Eindeutige Vermaßung der einzelnen Elemente.
Für die Dokumentationen reichen herunterkopierte (verkleinerte) Pläne vollkommen aus. Sie sind in den meisten Fällen (gerade bei großen Projekten) sogar wesentlich „griffiger“.
Die Vorteile liegen auf der Hand:
Die bunten Darstellungen können mit dem Auge viel schneller erfasst werden, als eintönige schwarze Zahlen.
Noch lange Zeit nach den Ermittlungen z. B. während der Bauleitung oder nach Unterbrechungen sind die Grundlagen der Mengen sofort ersichtlich. Langes Suchen nach irgendwelchen Materialien bzw. Abmessungen entfällt.
- Auch für andere am Bau Beteiligte, z. B. einzelne Subunternehmer oder Handwerker, ist die in der Form aufbereitete Mengenermittlung wertvoll, denn wo was, gemäß der Ausschreibung, ausgeführt werden soll, ist eindeutig dokumentiert.
Da die Mengenermittlung nach diesem System die Grundlage zur Ausschreibung bildet, sollte Sie gleichzeitig natürlich auch Grundlage für die Abrechnung sein. Dieses ist aufgrund der eindeutigen und übersichtlichen Dokumentationen immer gewährleistet.
Auch bei nachträglichen Änderungen gibt es keine Probleme, da die übersichtlichen Dokumentationen, die vorher ermittelten Mengen bzw. Materialien sofort greifbar machen, die dann entsprechend den neuen Gegebenheiten schnell gegengerechnet bzw. überarbeitet werden können.
Die Mengenermittlung nach der Hasenbein-Methode ist praxisorientiert nach Bauteilen/Baubereichen in Module gegliedert: Jedes Bauwerk, egal welchen Volumens, wird in einzelne Bauteile zerlegt. Die einzelnen Bauteile/ Baubereiche bilden immer in sich geschlossene Systeme, die sinnvoll aufeinander aufbauen. Die Ergebnisse eines Moduls werden an alle Stellen weitergegeben, an denen sie in irgendeiner Form von Nutzen sein können.
Die Eingabe- und Ergebnislisten werden auch nach diesen Bauteilen (Modulen) in einem speziellen Abheftsystem gegliedert abgeheftet.
Am Beispiel des Moduls „Fenster, Außentüren, Tore“ soll kurz die systematische Vorgehensweise verdeutlicht werden: Bei der Ermittlung der Mengen konzentrieren wir uns ausschließlich z. B. auf das Fensterelement – welches ja relevant für viele Gewerke ist – und definieren alle Elemente, die mit dem Fenster in Zusammenhang stehen.
Jedes Fenster wird nacheinander über die Eingabemaske im Programm erfasst und damit vollständig beschrieben. Natürlich können dabei Parameter voreingestellt bzw. Fenster auch kopiert und dann abgeändert werden.
Wenn alle Fenster eingegeben sind, werden sie automatisch nach Typ und Größe sortiert (durchpositioniert) und VOB-geprüft an andere Gewerke weitergegeben.
Prüfbare Ergebnisausdrucke können für jedes betreffende Gewerk ausgegeben werden.
So kommt auch hier der Grundsatz zur Anwendung: Einmal ermitteln, mehrfach nutzen!
Bewusst ausgeklammert bleibt der gesamte Bereich der Haustechnik (Sanitär, Heizung, Elektro, Klima, Lüftung, etc.), da es hier kaum Ansätze zu rationeller Mengenermittlung gibt (Aufaddieren von Leitungslängen, Zählen von Stückpositionen).
Erfahrungen
Hasenbein ist seit 35 Jahren der Spezialist für Mengenermittlung im Hochbau. Die jahrelangen praktischen Erfahrungen des Ingenieurbüros bilden die Grundlage für die Mengenermittlungs-Software nach der Hasenbein-Methode.
Die Methode ist einzigartig und liefert exakte Ergebnisse in Abrechnungsqualität. Sie ist ideal für Pauschalisierungen, so muss man nicht während der Bauphase mehrmals Mengen berechnen oder prüfen, denn es gibt nur eine richtige Menge aufgrund der Geometrie und Mathematik.
